Issue #39
Gut Renovation
Some projects ask you to start with a husk—removing all traces of effort, neglect, and care—and impose a new order in its place. It is a violent and hazardous process. One that involves a dumpster, hard labor, and safety gear. While architectural practice and songwriting are often iterative and additive, sometimes scrapping existing work is necessary to make space for something new.
Some existing material might be salvageable; although, it will require reclamation and storage space. For example, recovering an old melody from an unfinished song can look like removing the accompanying lyrics and recording myself humming it. I can also rescue short turns of phrase from an otherwise bland verse. It is helpful to be able to discern the good stuff from the obsolete. I often go with my gut with these decisions, but I know some songwriters archive and catalog their work for later use.
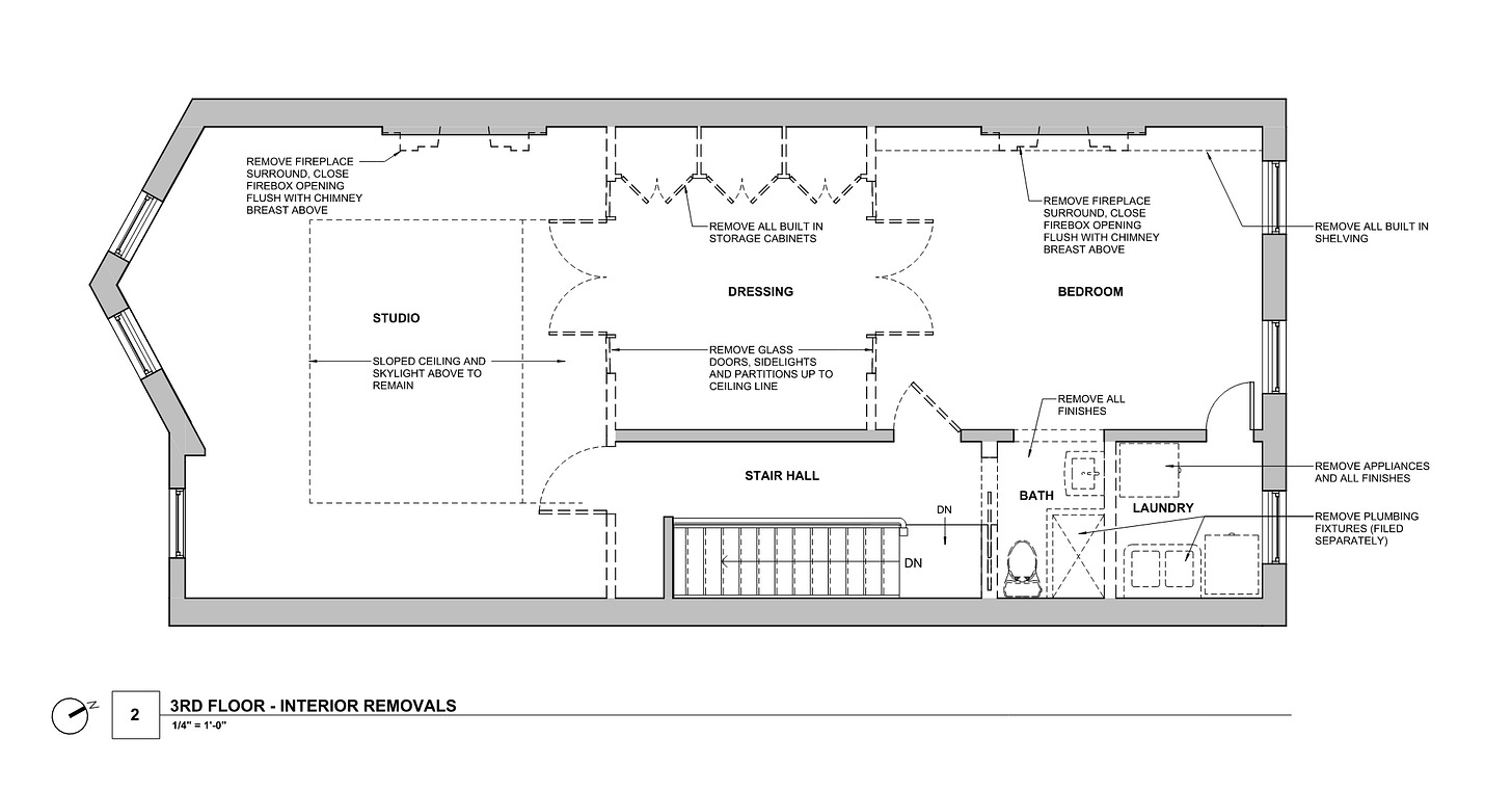
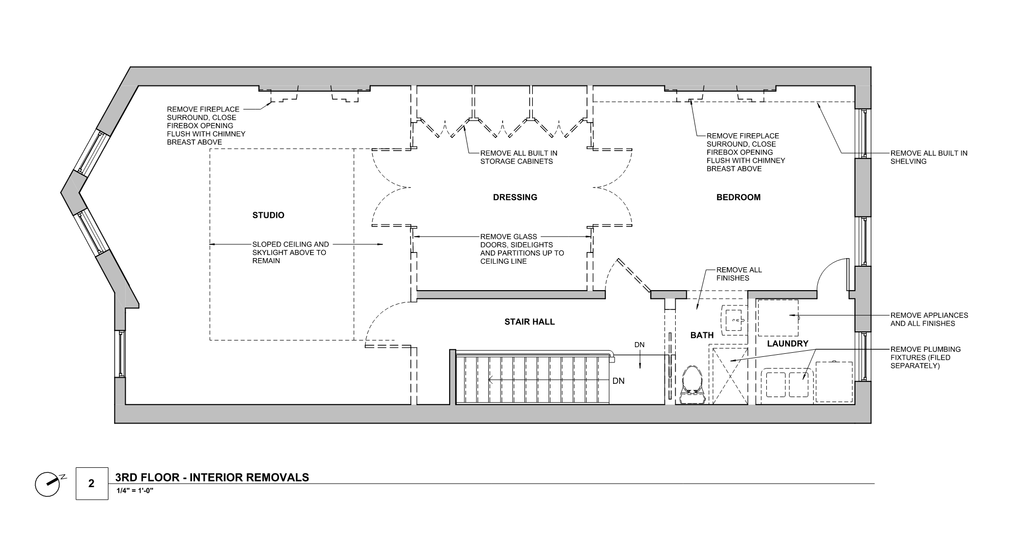
In an architectural drawing set, demolition plans proceed construction plans. After an initial site survey, I begin by modeling the existing conditions and creating the demo plans. These plans tell the contractor exactly what to remove and what to maintain. The drawings look clean and tidy, but demolition is messy and precarious work. I recently visited a construction site where the floors were demoed down to the floor joists. I was tip toeing on unfastened, warped plywood that felt more like a see-saw than a floor.



After settling into our new band lineup, we decided to revisit our setlist. I was itching to work on new songs, and we were ready to part ways with a song. Being a newer band, our set needs to be around 30 minutes to comfortably fit on a bill with two or three other bands. Gutting one song from our set made room for a new song. Doing this had the effect of demolishing an old wall with 10 layers of wallpaper on it. How exciting!
Gut renovations can get out of hand quickly like showing you structural issues you weren’t prepared to handle or create dangerous working conditions. It is important to demolish with a plan and be aware of the risks. I wrote about one daunting gut reno I witnessed last year in Issue #16.
The lyrics were inspired by a site visit I had at work the week prior. For some added context, the site visit occurred after the demolition phase had started, and we could now see the existing structure which was in poor condition. We could see bowing joists, cracked structural elements, and water damage among other problems.
To make matters worse, our client was only leasing the first floor and cellar. The owner was resistant to finance a new roof, but our client couldn’t proceed with the existing structure until the issues were addressed. The gut renovation uncovered a bigger mess than anyone was prepared to clean up.
As a human, it is cathartic to gut something and start all over. Gut renovations remind me it is ok to change your mind. Almost nothing is fixed, and that is comforting. Our songs and buildings and communities adapt and change over time. We can always scrap what isn’t working and try again.




